L'immobilier par les DOM pour les DOM

Espace pro

Immeuble a usage mixte 188m2

Annonce - Réf : 13628

8
219 900 €
Vente Immeuble 97142
Immeuble a usage mixte 188m2
Immeuble a usage mixte 188m2
Immeuble a usage mixte 188m2
Immeuble a usage mixte 188m2
Immeuble a usage mixte 188m2
Immeuble a usage mixte 188m2
Immeuble a usage mixte 188m2
Honoraires : 8,65% TTC du prix de vente à la charge de l'acquéreur
Montant des honoraires : 17 500,00 € TTC
Prix hors honoraires acquéreur : 202 400,00 €
Descriptif
  • 188 m2

Ne passez pas à côté de cette opportunité en EXCLUSIVITE dans votre agence IMMOCONSEIL.
Immeuble de 188 m2 habitable en périphérie proche de Pointe-à-Pitre avec parking privatif de 90 m2.
Sur un axe passant avec une belle façade permettant une visibilité commercial privilégiée.
Ce bien est à terminer pour le R+1 et à rénover pour le RDC.
La construction de la surélévation a moins d'un an.
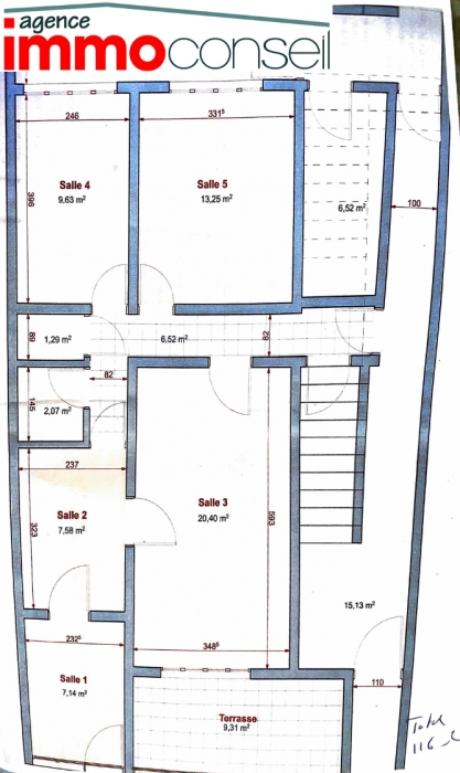
Il se compose : RDC = Une pièce principale de 20,40 m2 avec ouverture sur une terrasse de 9 m2 , 2 pièces de 7 m2 accolées desservi par un couloir de 6,52 m2 avec une salle d'eau de 2,07 m2 et un WC séparé de 1,29 m2 . À l'arrière, vous trouverez deux pièces pouvant servir de chambres ou de bureaux ouvert sur une terrasse de 8 m2.
R+1= Entrée indépendante , toiture terrasse de 25 m2 desservant les deux pièces a terminer de 38 m2 et 44m2 ayant toutes les deux un balcon privatisé.
Devis et plans consultables le jour de la visite.
L'agence immoconseil attend votre appel pour venir découvrir ce bien ayant un fort potentiel. Agence IMMO CONSEIL la marina Pap xx-xx-xx-xx-xx Agence IMMO CONSEIL saint francois les arcades xx-xx-xx-xx-xx
Les informations sur les risques auxquels ce bien est exposé sont disponibles sur le site Géorisques : www.georisques.gouv.fr

AGENCE IMMO CONSEIL

1 cc l’étoile rond point de la Marina - Carrefour Blanchard 97110 Pointe à Pitre
Afficher le numéro
Immo Conseil, agence immobilière à Baie Mahault, Saint François, Sainte Anne ou encore Le Gosier, vous propose un service de transaction, vente, lo...
En savoir plus sur cette agence
Immo Conseil, agence immobilière à Baie Mahault, Saint François, Sainte Anne ou encore Le Gosier, vous propose un service de transaction, vente, location, défiscalisation, gestion et syndic de copropriété sur le secteur Guadeloupe. Découvrez nos annonces de vente et location : maisons à Sainte Anne, appartements à St François, terrains à Baie Mahault, programmes neufs et biens immobiliers à usage professionnel.
Réduire
SARL AGENCE IMMO CONSEIL RCS POINTE APITRE TMC 522 912 633 N° GESTION 2010 B617 SIRET : 522 912 633 00016 SIEGE SOCIAL : 9 Cc de l’Etoile la marina Blanchard 97110 Pointe à pitre CARTE PROFESSIONNELLE N° 10-183 T/G DELIVREE PAR LA PREFECTURE DE BASSE TERRE LE 18 NOVEMBRE 2010 GARANTIE FINANCIERE SEGAP -63 AVENUE DE SUFFREN 75017 PARIS POUR UN MONTANT DE 610 000 €
Contact par Email
(champs obligatoires *)
Parlez nous de votre recherche (facultatif)
Agence AGENCE IMMO CONSEIL Guadeloupe

AGENCE IMMO CONSEIL

Afficher le numéro
Contact par Email
(champs obligatoires *)
Parlez nous de votre recherche (facultatif)
© 97immo.com - Toute reproduction textuelle ou graphique interdite