L'immobilier par les DOM pour les DOM

Espace pro

Vente Terrain 359m² Saint-Pierre

Annonce - Réf : 1906676

3
165 055 €
Vente Terrain 97410
Vente Terrain 359m² Saint-Pierre
Vente Terrain 359m² Saint-Pierre
Honoraires : à la charge du vendeur
Descriptif
  • 359 m2

  • Terrain : 359 m2

iad France - Mathieu Hoareau vous propose: Deux Terrains constructibles à  Monts-les-Bas (haut du Chemin Lebon)

Opportunité à  ne pas manquer !
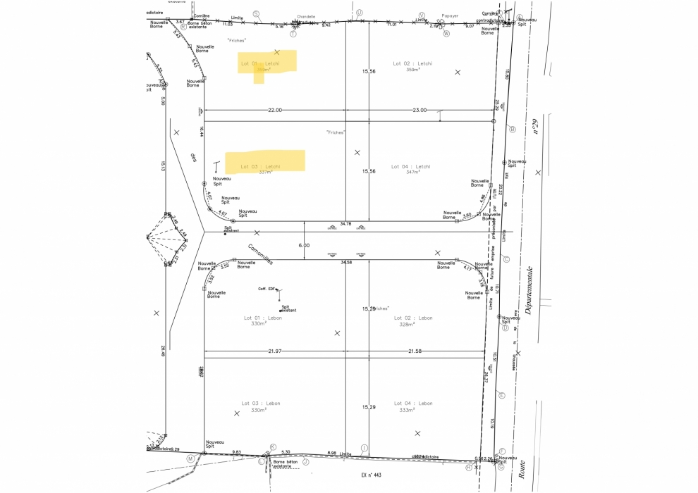
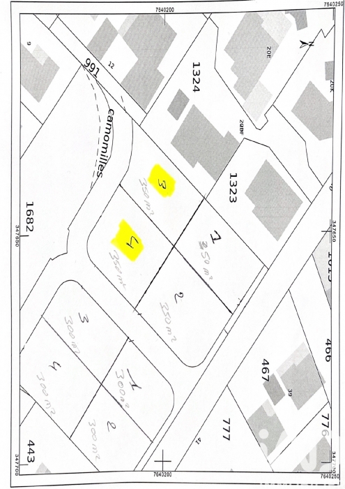
Dans un secteur calme, recherché et parfaitement situé, découvrez les 6 terrains de 359 m2 a d'en 359 m² environs , terrain plus ou moins plat , en zone UF, idéal pour votre future construction.
6 m à  l'égout du toit ou au sommet de l'acrotère et à  11 m au faà®tage.
50% emprise au sol

✔ Points forts :

Terrain prêt à  bà¢tir (réseaux électricité, eau et télécom à  proximité)

Environnement agréable à  380 m d'altitude

à€ seulement 10 minutes du CHU

Proche des commodités : commerces, écoles, transports

Accès facile, quartier résidentiel prisé

⚠ Les terrains indiqués en jaune sur le plan sont déjà  vendus.

Idéal pour un premier projet, une résidence principale ou un investissement.


Honoraires d'agence à  la charge du vendeur.
Bien non soumis au DPE. Les informations sur les risques auxquels ce bien est exposé, y compris l'obligation légale de débroussaillement, sont disponibles sur le site Géorisques : http://www.georisques.gouv.fr.
La présente annonce immobilière a été rédigée sous la responsabilité éditoriale de M Mathieu Hoareau mandataire indépendant en immobilier (sans détention de fonds), agent commercial de la SAS I@D France immatriculé au RSAC de SAINT PIERRE DE LA REUNION sous le numéro 949522072, titulaire de la carte de démarchage immobilier pour le compte de la société I@D France SAS.
Les informations sur les risques auxquels ce bien est exposé sont disponibles sur le site Géorisques : www.georisques.gouv.fr
Commercial en charge de cette annonce
Mathieu Hoareau
Afficher le numéro
Lui envoyer un email

Mathieu Hoareau

Afficher le numéro
Le plus large réseau de mandataires immobiliers au service de votre projet. Contactez le mandataire le plus proche de vous.
En savoir plus sur cette agence
Le plus large réseau de mandataires immobiliers au service de votre projet. Contactez le mandataire le plus proche de vous.
Réduire
Contact par Email
(champs obligatoires *)
Parlez nous de votre recherche (facultatif)
Agence IAD France La Réunion

Mathieu Hoareau

Afficher le numéro
Contact par Email
(champs obligatoires *)
Parlez nous de votre recherche (facultatif)
© 97immo.com - Toute reproduction textuelle ou graphique interdite