L'immobilier par les DOM pour les DOM

Espace pro

En exclusivité ! Immeuble situé à proximité du port de Pointe-à-Pitre.

Annonce - Réf : 14015

4
218 000 €
Vente Immeuble 97110
En exclusivité ! Immeuble situé à proximité du port de Pointe-à-Pitre.
En exclusivité ! Immeuble situé à proximité du port de Pointe-à-Pitre.
En exclusivité ! Immeuble situé à proximité du port de Pointe-à-Pitre.
Honoraires : à la charge du vendeur
Descriptif
  • 88.6 m2

Votre agence Immoconseil, vous présente en exclusivité cet immeuble sur la commune de Pointe-à-Pitre.
L'immeuble est composé :
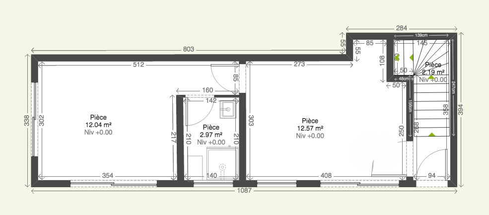
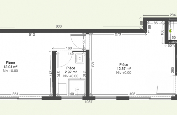
-Au rez-de-chaussée, un local à usage commercial d'une superficie de 29.77 m2 comprenant deux pièces et une salle d'eau avec WC.
-Au premier étage, un studio de 28.95 m2 composé d'une entrée, une cuisine, un espace de vie, une salle d'eau avec WC, ainsi qu’un balcon.
-Au deuxième étage, un appartement de 29,88 m2 vient compléter l’ensemble, avec une disposition identique : entrée, cuisine, espace de vie, salle d’eau avec WC et balcon.
Vous souhaitez le visiter ? N’hésitez pas à contacter l’agence Immoconseil au xx-xx-xx-xx-xx. Agence IMMO CONSEIL la marina Pap xx-xx-xx-xx-xx Agence IMMO CONSEIL saint francois les arcades xx-xx-xx-xx-xx
Nombre d'étages : 2
Taxe foncière : 1837€
Nombre d'étages : 2
Taxe foncière : 1837€
Les informations sur les risques auxquels ce bien est exposé sont disponibles sur le site Géorisques : www.georisques.gouv.fr

AGENCE IMMO CONSEIL

1 cc l’étoile rond point de la Marina - Carrefour Blanchard 97110 Pointe à Pitre
Afficher le numéro
Immo Conseil, agence immobilière à Baie Mahault, Saint François, Sainte Anne ou encore Le Gosier, vous propose un service de transaction, vente, lo...
En savoir plus sur cette agence
Immo Conseil, agence immobilière à Baie Mahault, Saint François, Sainte Anne ou encore Le Gosier, vous propose un service de transaction, vente, location, défiscalisation, gestion et syndic de copropriété sur le secteur Guadeloupe. Découvrez nos annonces de vente et location : maisons à Sainte Anne, appartements à St François, terrains à Baie Mahault, programmes neufs et biens immobiliers à usage professionnel.
Réduire
SARL AGENCE IMMO CONSEIL RCS POINTE APITRE TMC 522 912 633 N° GESTION 2010 B617 SIRET : 522 912 633 00016 SIEGE SOCIAL : 9 Cc de l’Etoile la marina Blanchard 97110 Pointe à pitre CARTE PROFESSIONNELLE N° 10-183 T/G DELIVREE PAR LA PREFECTURE DE BASSE TERRE LE 18 NOVEMBRE 2010 GARANTIE FINANCIERE SEGAP -63 AVENUE DE SUFFREN 75017 PARIS POUR UN MONTANT DE 610 000 €
Contact par Email
(champs obligatoires *)
Parlez nous de votre recherche (facultatif)
Agence AGENCE IMMO CONSEIL Guadeloupe

AGENCE IMMO CONSEIL

Afficher le numéro
Contact par Email
(champs obligatoires *)
Parlez nous de votre recherche (facultatif)
© 97immo.com - Toute reproduction textuelle ou graphique interdite