L'immobilier par les DOM pour les DOM

Espace pro

Vente Appartement 61m² 2 pièces Saint Joseph

Annonce - Réf : 1925683

6
190 000 €
Vente Appartement 97480
Vente Appartement 61m² 2 pièces Saint Joseph
Vente Appartement 61m² 2 pièces Saint Joseph
Vente Appartement 61m² 2 pièces Saint Joseph
Vente Appartement 61m² 2 pièces Saint Joseph
Vente Appartement 61m² 2 pièces Saint Joseph
Honoraires : à la charge du vendeur
Descriptif
  • 2 Pièces

  • 1 Chambre

  • 61 m2

  • Terrain : 706 m2

iad France - Julianna Morel vous propose: Appartement NEUF - T2 - 61m² utiles - Résidence privée et sécurisée proche centre-ville dans le quartier des Jacques.

Vous êtes à  la recherche d'un appartement sans travaux, proche de toutes les commodités avec un petit plus vue mer et/ou montagne? Ne cherchez plus, ce produit est fait pour vous!

Situé au 1er étage de sa résidence, cet appartement NEUF de 2025 vous garantit modernité, confort et tranquillité, le tout, aux portes de la ville, à  moins de 5 minutes de son centre et à  environ 10 minutes du Centre Commercial LES TERRASS.

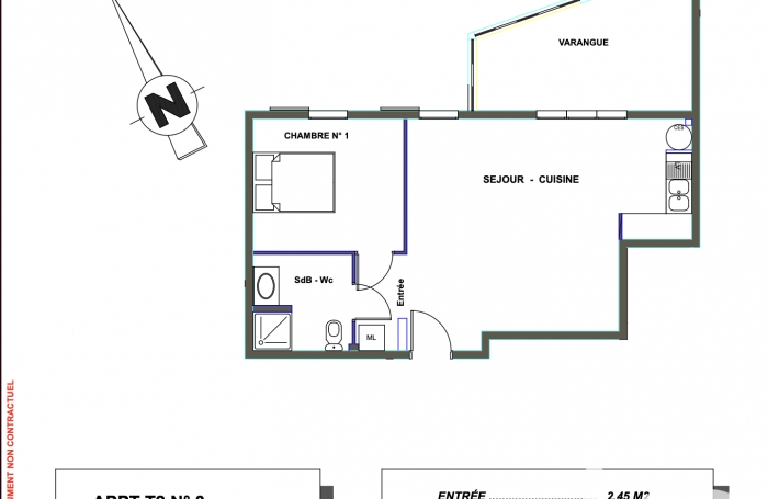
Il est composé d'une entrée sur l'espace séjour/cuisine (en partie équipée et aménagée) pour environ 32m², une chambre de 11m², puis une salle d'eau avec WC d'environ 5m².

En continuité de l'espace de vie, vous apprécierez son extérieur, une varangue de près de 13m².
Ce bien est vendu avec une place de stationnement.

Idéal pour investir ou y habiter, ce logement est éligible à  la loi de défiscalisation Girardin à  l'IS (25%) et au crédit d'impôts 244 Quarter W (34%). Cet appartement étant vendu comme NEUF, vous bénéficiez sur cette acquisition de frais de notaire réduits.

Rencontrons-nous et CONCRETISONS ENSEMBLE votre projet immobilier !



























La presente annonce immobiliere vise 2 lots situés dans une copropriété de 18 lots au total et ne faisant l'objet d'aucune procédure en cours citée à  l'article L. 721-1 du code de la construction et de l'habitation. Montant moyen mensuel de charges déclaré par le vendeur : 80€ par mois (soit 960 € annuel). Honoraires d'agence à  la charge du vendeur.
Bien non soumis au DPE. Les informations sur les risques auxquels ce bien est exposé, y compris l'obligation légale de débroussaillement, sont disponibles sur le site Géorisques : http://www.georisques.gouv.fr.
La présente annonce immobilière a été rédigée sous la responsabilité éditoriale de Mme Julianna Morel mandataire indépendant en immobilier (sans détention de fonds), agent commercial de la SAS I@D France immatriculé au RSAC de LA ROCHE-SUR-YON sous le numéro 899903108, titulaire de la carte de démarchage immobilier pour le compte de la société I@D France SAS.
Ce bien est situé dans une copropriété ne faisant l'objet d'aucune procédure en cours Nombre de lots : 18 Charges annuelles : 960 €
Nombre d'étages : 2
Situé à l'étage : 1
Nombre d'étages : 2
Situé à l'étage : 1
Les informations sur les risques auxquels ce bien est exposé sont disponibles sur le site Géorisques : www.georisques.gouv.fr
Commercial en charge de cette annonce
Julianna Morel
Afficher le numéro
Lui envoyer un email

Julianna Morel

Afficher le numéro
Le plus large réseau de mandataires immobiliers au service de votre projet. Contactez le mandataire le plus proche de vous.
En savoir plus sur cette agence
Le plus large réseau de mandataires immobiliers au service de votre projet. Contactez le mandataire le plus proche de vous.
Réduire
Contact par Email
(champs obligatoires *)
Parlez nous de votre recherche (facultatif)
Agence IAD France La Réunion

Julianna Morel

Afficher le numéro
Contact par Email
(champs obligatoires *)
Parlez nous de votre recherche (facultatif)
© 97immo.com - Toute reproduction textuelle ou graphique interdite