L'immobilier par les DOM pour les DOM

Espace pro

Location Maison 54m² 3 pièces Gourbeyre

Annonce - Réf : 340938157367

9
1 100 € / mois
Location Maison 97113
Location Maison 54m² 3 pièces Gourbeyre
Location Maison 54m² 3 pièces Gourbeyre
Location Maison 54m² 3 pièces Gourbeyre
Location Maison 54m² 3 pièces Gourbeyre
Location Maison 54m² 3 pièces Gourbeyre
Location Maison 54m² 3 pièces Gourbeyre
Location Maison 54m² 3 pièces Gourbeyre
Location Maison 54m² 3 pièces Gourbeyre
Honoraires à la charge du locataire : 610,00 €
Part honoraires pour l'état des lieux : 161,00 € TTC
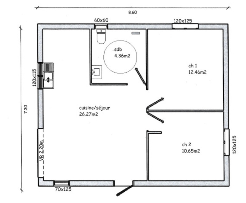
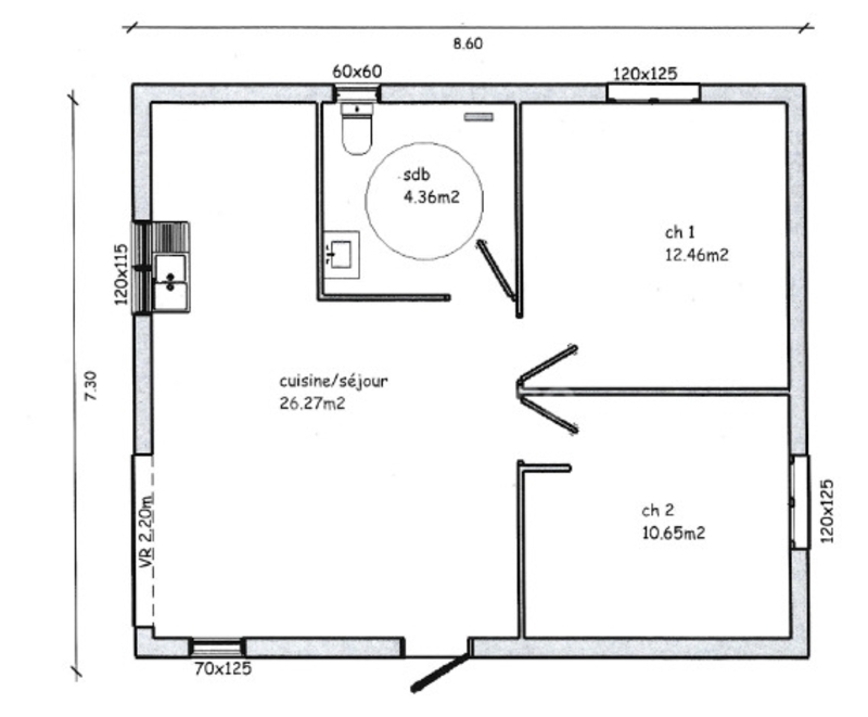
Descriptif
  • 3 Pièces

  • 2 Chambres

  • 1 Salle d'eau

  • 1 WC

  • 54 m2

Située à Gourbeyre, à proximité immédiate de la route des Palmistes, cette maison neuve de plain-pied, proposée en location nue (non meublée), offre un cadre de vie calme et agréable, tout en restant facilement accessible.

Description du logement :
- Séjour et cuisine ouverte aménagée, équipée d'une plaque de cuisson et d'un four, avec emplacements prévus pour lave-vaisselle et machine à laver.
- Deux chambres
- Une salle d'eau fonctionnelle avec douche, WC et vasque/meuble vasque
- Une terrasse couverte de 22 m²

Disponibilité immédiate

Environnement résidentiel, paisible, verdoyant
Bonne ventilation naturelle

Conditions locatives
Loyer mensuel : 1 100 €/mois
Eau et électricité non comprises
Dépôt de garantie : 1 100 € (1 mois de loyer sans les charges)

Conditions de solvabilité
Revenus mensuels minimum du foyer : 3 300 € ou garantie visale acceptée

Dossier à fournir :
Pièce d'identité
Justificatif de domicile ou attestation d'hébergement + CNI de l'hébergeur + justificatif de domicile
Dernier avis d'imposition
Contrat de travail ou attestation employeur
3 derniers bulletins de salaire
Indépendants : 2 derniers bilans, avis d'imposition, attestation du comptable
Retraités : notification de pension ou 3 derniers relevés de pension

Toutes les photos sont disponibles sur le site Capifrance.
Les honoraires sont partagés entre le locataire et le bailleur, les honoraires à la charge du locataire sont de 610,00€, dont 161,47€ pour l'état des lieux.
Les informations sur les risques auxquels ce bien est exposé sont disponibles sur le site Géorisques : www. georisques. gouv. fr.

Réseau Immobilier CAPIFRANCE - Votre agent commercial (RSAC N°883 718 454 - Greffe de POINTE A PITRE) Johanelle FLANDRINA Entrepreneur Individuel xx-xx-xx-xx-xx - Réf.936241

Energie

A
B
C
D
E
F
G
9kWh/m².an

GES

A
B
C
D
E
F
G
1KgeqCO2/m².an

Energie

A
B
C
D
E
F
G
9kWh/m².an

GES

A
B
C
D
E
F
G
1KgeqCO2/m².an
Les informations sur les risques auxquels ce bien est exposé sont disponibles sur le site Géorisques : www.georisques.gouv.fr
Commercial en charge de cette annonce
Madame Johanelle FLANDRINA
Afficher le numéro
Lui envoyer un email

Madame Johanelle FLANDRINA

Afficher le numéro
En 2002, Capifrance révolutionne le secteur immobilier en créant le premier réseau de conseillers immobiliers indépendants en France, avec des serv...
En savoir plus sur cette agence
En 2002, Capifrance révolutionne le secteur immobilier en créant le premier réseau de conseillers immobiliers indépendants en France, avec des services uniquement proposés en ligne et sans agence physique. Son pari a été de miser sur Internet et d'en faire son unique vitrine. En axant sa stratégie sur le phygital, qui conjugue une forte proximité physique à la puissance du digital, Capifrance s'impose aujourd'hui comme un des leaders de son secteur.
Réduire
AGENCE IMMOBILIÈRE CAPI, SAS au capital de 100.000 euros
Siège social : 639 rue du Mas de Verchant - Immeuble Diver’city 34170 Castelnau le lez
Siret : 441 338 985 00076 – Code APE : 6831Z
N° de TVA intracommunautaire : FR44 441 338 985
Contact par Email
(champs obligatoires *)
Parlez nous de votre recherche (facultatif)
Agence Capi FRANCE Guadeloupe

Madame Johanelle FLANDRINA

Afficher le numéro
Contact par Email
(champs obligatoires *)
Parlez nous de votre recherche (facultatif)
© 97immo.com - Toute reproduction textuelle ou graphique interdite